BanderaVisite o site das nossas filiaisOficinas Locales

A solução completa em preparação de superfícies para o Brasil

Sistema Neumático Portátil Para Aspiración

Sistema Neumático Portátil Para Aspiración

Los sistemas portátiles para aspiración de materiales en procesos de granallado diseñados y fabricados por Axxiom Manufacturing Schmidt se caracterizan por su sencillez, facilidad de instalación, bajo costo y la comodidad para transportarlo de un lugar a otro.

Requiere únicamente de una fuente de aire presurizado y un recipiente donde se desea almacenar el material que se recoge.

No borrar:

Recuperador de abrasivo:

Características Gerais

Axxiom Schmidt  |   U.S.A.

La solución más práctica,  económica y portátil para el problema de recolección de materiales   en proceso de  limpieza de superficies.


Requiere únicamente de una fuente  de aire presurizado y un recipiente donde se desee almacenar el material que se recoge.


El equipo  fabricado por Axxiom Schmitd es el más versátil y práctico utilizado en Norteamérica para recolección de materiales.

Comparte en tus redes Sociales

Sistema Neumático Portátil para Aspiración de Materiales en Procesos de Granallado

Requiere únicamente de una fuente de aire presurizado y un recipiente donde se desea almacenar el material que se recoge.

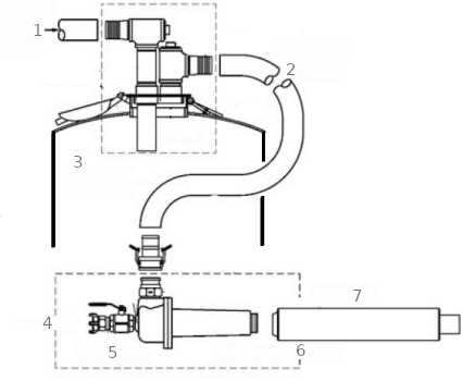
Sistema Neumático para Aspiración con tapa para conexión a Caneca Estándar de 55 galones

Sistema Neumático Portátil

  1. Ensamblaje de la bomba eductora de uretano de 150 CFM, 225 CFM, 350 CFM o 440 CFM
  2. Eductor de uretano
  3. Boquilla eductora de 150 CFM, 250 CFM, 350 CFM, 450 CFM o 550 CFM
  4. Válvula de presión, puerto completo de 2″
  5. Boquilla TBE, 2″ x cerrada
  6. Palanca, 4 tapones 2″ FNPT
  7. Cierre de leva tipo A, 3″
  8. Cierre de leva tipo C, 3″
  9. Manguera de aspiración, 3″
  10. Montaje de la placa de aspiración del tambor
  11. KC Boquilla, 3”
  12. Codo de 90º, 3″
  13. Tee, 3”
  14. Conector, 3”
  15. Boquilla TBE, 3″ x cerrada
  16. Placa de aspiración del tambor
  17. Junta de la placa de vacío del tambor
  18. Puntera de Boquilla, 3″ x 10”

Número Pieza No. Descripción
1 2018-111-00 Ensamblaje de la bomba eductora de uretano 150 CFM
2018-211-00 Ensamblaje de la bomba eductora de uretano 225 CFM
2018-311-00 Ensamblaje de la bomba eductora de uretano 350 CFM
2018-411-00 Ensamblaje de la bomba eductora de uretano 440 CFM
2 2018-011 Eductor de uretano
3 2018-111-00 Boquilla Eductora 150 CFM
2018-211-00 Boquilla Eductora 250 CFM
2018-311-00 Boquilla Eductora 350 CFM
2018-411-00 Boquilla Eductora 450 CFM
2018-511-00 Boquilla Eductora 550 CFM
4 5401-509 Válvula de presión, puerto completo de 2″
5 3029-009-99 Boquilla TBE, 2″ x cerrada
6 4211-109 Palanca, 4 tapones 2″ FNPT
7 4217-411 Cierre de leva tipo A, 3″
8 4219-411 Cierre de leva tipo C, 3″
9 4107-011 Manguera de aspiración, 3″
10 5024-025 Montaje de la placa de aspiración del tambor
11 4212-011 KC Boquilla, 3”
12 3000-011 Codo de 90º, 3″
13 3011-011 Tee, 3”
14 3014-011 Conector, 3”
15 3029-011-99 Boquilla TBE, 3″ x cerrada
16 5024-025-01 Placa de aspiración del tambor
17 5024-025-03 Junta de la placa de vacío del tambor
18 3030-011-19 Puntera de Boquilla, 3″ x 10”

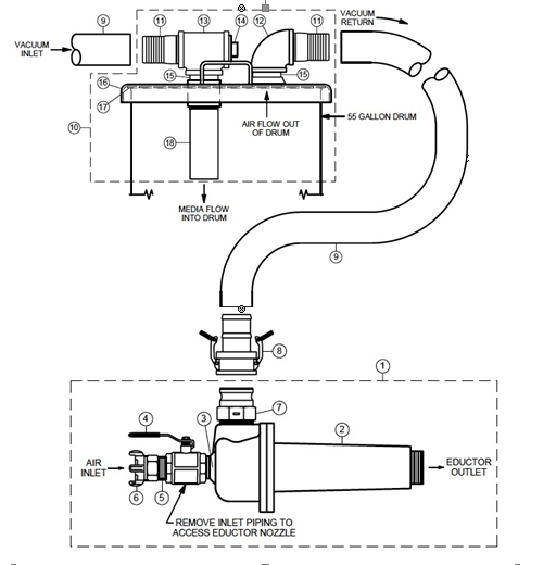
Sistema Neumático para Aspiración con Placa de Conexión de Diámetro 10“ para Conectar Cualquier Tolva o Tanque de Almacenamiento

Sistema Neumático de Aspiración de 10 pulgadas

  1. Vacuum Inlet
  2. Vacuum Return
  3. Storage Tank
  4. Air Inlet
  5. Eductor
  6. Eductor Outlet
  7. Muffler

La tabla que se muestra con el desempeño de los sistemas de aspiración debe utilizarse únicamente como referencia para selección de equipos.

Desempeño De Los  Sistemas de Aspiración (Toneladas por Hora)
Distancia 50 Pies 100 Pies 200 Pies
Diámetro Manguera Ø = 3 « Ø = 4 « Ø = 3 « Ø = 4 « Ø = 3 « Ø = 4 «
LIQUIDOS
Agua 28 56 19 39 14 28
Diesel 26 51 16.8 36 13 26
Liquidos Pesados
Residuos de Petroléo 2.5 4.9 2 3.4 1.1 2.2
MATERIALES HUMEDOS
Residuos Metálicos 2.2 4.5 1.5 2.6 1.1 2.2
Residuos de óxido 26 5.2 2 3.8 1.1 2.2
Concreto Pulverizado 3 6 3.8 4.8 1.1 2
Trigo 3 6 3.8 4.5 1.5 3
Arena 3 6 3.8 4.5 1,5 3
MATERIALES SECOS
Granalla Angular 3 6 3.8 4.5 1,5 3
Arena 3 6 3.8 4.5 1,5 3
Acerrin 3 6 3.8 4.5 1,5 3
Cemento 3 6 3.8 4.5 1,5 3
Oxido de Aluminio 3 6 3.8 4.5 1,5 3
MATERIALES MOJADOS
Hidrocarburos 19 38 13 26 9.8 19
Cárbon Negro 4.5 9 3 6 3,8 45
Sedimentos 3 6 3.8 4 1.5 3
Esta información es basada en medidas con equipos Schmitd y deben ser utilizados únicamente como
referencia. El valor real de desempeño puede variar de acuerdo a las condiciones de trabajo.

Produtos Relacionados

Granallado Húmedo – AmphiBlast

Granallado Húmedo – AmphiBlast

Axxiom Schmidt |  U.S.A.

Los sistemas de granallado húmedo de Axxiom Shmidt AmphiBlast ,representan un avance y economía para la industria de preparación de superficies, gracias a que tiene cuatro operaciones integradas en un solo equipo: El AmphiBlast combina controles Schmidt probados y conocidos con una innovadora tecnología de inyección de humedad para un sistema de chorro ...

Granallado Húmedo – AmphiBlast

AmphiBlast 4 en 1, Granallado Seco, Granallado Húmedo, Enjuague y Secado


La tecnología Schmidt M.I.S.T™ permite que el consumo de agua en proceos de granallado húmedo sea de únicamente 0.5 litros por minuto.


Disponible en diferentes tamaños (Pies cúbicos): Mini 1.5, Lite 3.5, Skid Una Salida 4.5, Skid Doble Salida 6.5 & Bulk 45 & Múltiples salidas


Permite el uso de cualquier tipo de abrasivo (granalla mineral, granalla metálica, vidrio, cáscara de nuez, etc.)


La válvula Teravalve™ XL o Thompson™ II, permiten el ahorro significativo del consumo abrasivo durante ...

Ver más
Tolva de Doble Cámara

Tolva de Doble Cámara

Axxiom Schmidt |  U.S.A.

Equipo diseñado y construido por Axxiom Schmidt que permite al operario mantener un chorreado de abrasivo continuo, aumentando considerablemente los niveles de producción en comparación con otros equipos disponibles en la industria de limpieza y preparación de superficies. Equipada con válvula dosificadora de abrasivo Thompson II, Combo Valve para la ...

Tolva de Doble Cámara

Tolva para trabajo continuo de una o dos salidas con certificación ASME.


Combo Valve controlada por sistema con sensor de nivel y temporizador.


Separador de humedad (opcional).


Deadman neumático o eléctrico.


Válvula de dosificación de abrasivos Thompson II.


Tolvas de 8, 10 y 20 ft3. Disponibles en tamaños personalizados hasta 240 ft3.

Ver más
Tolvas de Granallado con Sistema de Presión Constante

Tolvas de Granallado con Sistema de Presión Constante

Axxiom Schmidt |  U.S.A.

Las Tolvas de Granallado y/o SandBlasting de Axxiom Schmidt con Sistema de Presión Constante (Pressure Hold), están equipadas con la famosa Válvula Thompson II ®, ofrecen a los usuarios no solo la mínima caída de presión que se garantiza con el uso de tecnología Schmidt (menos de 1 psi en algunos casos), sino que adicionalmente garantiza ...

Tolvas de Granallado con Sistema de Presión Constante

Válvula de Control de Abrasivo Thompson II ®


Máxima presión de trabajo: 150 PSI (10.3 bar)


Máximo ahorro de abrasivo


Mínimas pérdidas de aire (Presión Constante)


Opcional sistema de corte de abrasivo (Abrasive Cut Off)

Ver más
Accesorios de Control

Accesorios de Control

Axxiom Schmidt |  U.S.A.

Las válvulas y controles desarrolladas por Axxiom Schmidt están diseñados y fabricados para ser los más duraderos y confiables de la industria. Los materiales seleccionados en su fabricación son de la más alta calidad, bajo estrictas especificaciones y tolerancias generan seguridad para el operador, rendimiento, durabilidad y confiabilidad. No borrar: ...

Accesorios de Control

Diseñadas para usar significativamente menos abrasivo que otras marcas.


Diseñados para maximizar la productividad del granallado y reducir el tiempo de inactividad.


Prácticos kits de conversión para tolvas que se adaptan a la mayoría de las marcas de equipos de granallado.

Ver más